Tag Archives: CUP

Two Comment Periods Closing Next Week

There are two comment periods on proposed developments closing next week. The first is an apartment complex on Palouse Hwy. just out in the County, the second is the memory care facility on Freya Street. I’ve outlined them briefly below:

Hilby Station 2 Apartments
There is a SEPA Comment period open for the proposed Hilby Station Apartments that we heard about last month. This is a 32-unit apartment complex on Palouse Hwy. just south of the intersection of Freya and Palouse Hwy.

I have uploaded the documents for review here:

The comment period is open till Friday, October 6th and you can submit your comments to the County Planing Department by emailing Dawn Dompier at ddompier@spokanecounty.org.

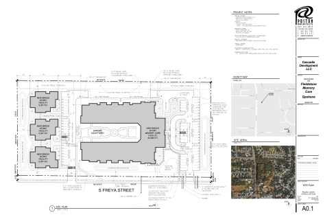
Fieldstone Memory Care Conditional Use Permit
We have written before about the CUP for the proposed memory care facility at 44th and Freya. The City is now seeking agency comments on the CUP and they are due by close of business Thursday, October 5th. Submit your comments to Stephanie Bishop at sbishop@spokanecity.org.

I have uploaded documents for review here:


Have fun considering these two projects. I encourage all of you to submit comments, however brief to let the City and County know what you think of the ongoing development up here in Southgate.

Update: Freya Memory Care Facility

 

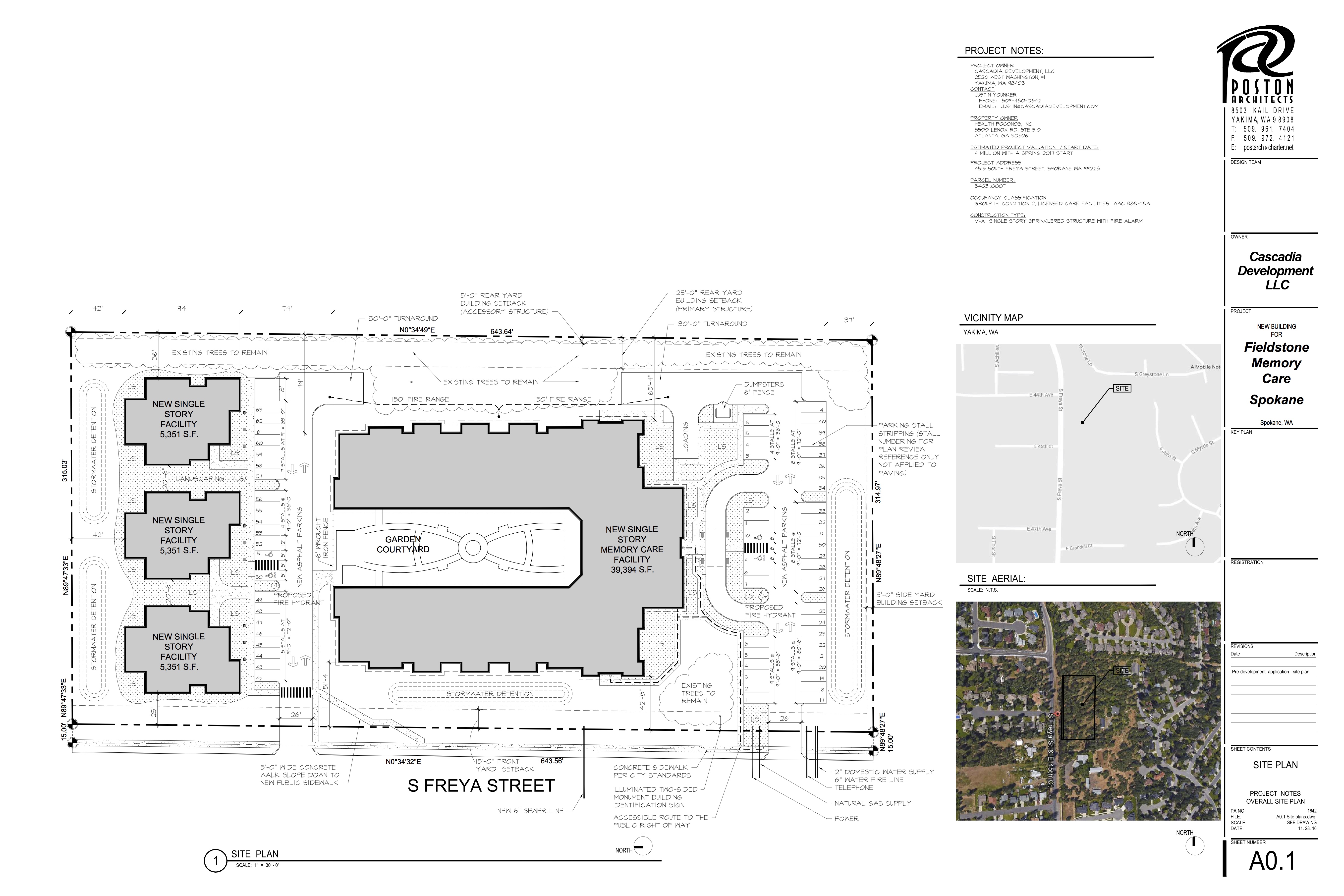
site_plan_overlay_Sept2017
A site plan overlaid on the current aerial view of the property.

Last week the developers of a proposed memory care facility at Freya and 44th Avenue held a community meeting to discuss the proposed project in advance of their application for a Conditional Use Permit from the City to build the project.

The developers had previously held a community meeting in March and nothing had changed on the site plan. What had changed was they have now purchased the property from the previous owners and completed geotechnical work to assess the rock and soil content on site. Based on that report, they don’t see any issues with moving forward with the project. This site has been the subject of four different proposals for assisted living facilities over the years and combinations of economic health and geotechnical complexity have scuttled all the previous plans.

The developers mentioned that their plan right now is to just construct the main 39,000 sq.ft. facility and not build the three smaller structures on the north side of the property. They may build them eventually, but for now they can make the project pencil out without them. The other buildings would be constructed based on market need for more group family homes in the area.

As it stands, the project will contain 48 units with 60 beds in the main building. They will offer 24/7 nursing care with about 23 people on day shift for a 3 to 1 patient to staff ratio.. The three outbuildings would add an additional 18 beds to the facility.

The final building would look like other facilities managed by Fieldstone in Yakima and other places in Washington. The main building would be a one-story slab-on-grade structure with two wings. The main part of the building is two stories to accommodate an interior promenade and courtyard. The developers say their goal is to retain as much of the mature trees and natural landscape as they can between their facility and the properties to the east and to buffer the visual impact of the facility from Freya with screening trees and shrubs.

There were some questions about the final grade of the site on the north end given the significant natural slope of the property that direction. The developers said there wouldn’t need to be much fill to level the site and that the development wouldn’t impact the 44th Avenue Trail due to a 40′ buffer on the north side of the property. However, looking at the scaled overlay above, it appears the buildings may encroach on the trail more than discussed at the meeting. We are waiting for more detailed site plans that show final contours and grading on site. We would like to maintain as much of a natural buffer along the 44th Avenue Trail as possible. We will post those images when we have them.

As part of their construction the will be completing curb, sidewalk, and planting strips along their property adjacent to Freya to City standards. They also mentioned that their grading an site prep will not include any blasting of basalt rock on site.

For next steps they will be submitting a full application package to the City, there will likely be a traffic impact study and comment period on the Conditional Use Permit once the application has been accepted. We will keep you posted on opportunities to comment.

Another Notice of Community Meeting for Freya Assisted Living Project

Southgate has received a notice that another group is proposing to develop an assisted living facility at 44th Avenue and Freya and the developer will be holding a Community Meeting on Tuesday, April 11th at 5:30pm at the Southside Community Center.

This new project is being called Fieldstone Memory Care and the site plan shared with the City at a pre-development meeting in December shows a 39,000 sq.ft. single story building with three smaller 5300 sq.ft. bungalows being built along the 44th Avenue trail on the north side of the property.

Pre-development notes from the City show the development will include 60 beds (a decrease from previous proposals). They City also indicates that they want the developers do construct full right-of-way improvements including curb, sidewalk, and pedestrian buffers along Freya. They are also encouraging the project to connect to the 44th Avenue Trail as an amenity for their residents.

This site is currently zoned as single-family residential, but it did have a Conditional Use Permit (CUP) granted in 2008 allowing development of assisted care facilities. That original CUP expired, so these developers would have to re-apply for a new Conditional Use Permit. As with previous proposals for this site, there will have to be extensive geotechnical and grading work done to make the site useable as indicated in the site plan.